Tax Department Link
Building Summary

Data last updated on: 3/3/2026     Ownership current as of: 2/25/2026     Tax Year: 2026
REID 56481

PIN # 7765-31-8200

Location Address Property Description
501 HILLCREST DR BROADVIEW AC;L33-34 PL:PB2-PG73
   
Property Owner Owner's Mailing Address
GALARZA, YONATAN ABONZA;GINES, KARLA ALFONSIN
501 HILLCREST DR
RANDLEMAN NC 27317
Parcel
Buildings
Misc Improvements
Land
Deeds
Notes
Sales
Photos
Tax Bill
Map
Building Location Address
501 HILLCREST DR
Building Description
SINGLFAM
Card   of  1
Bldg Type SINGLE FAMILY RES
Units 1
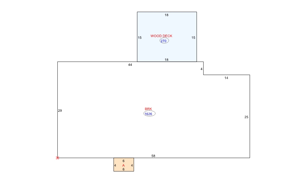
Living Area (SQFT) 1626
Number of Stories 1.00
Style RANCH
Foundation CRAWL
Exterior BRICK
Const Type
Heating CENTRAL
Air Cond CENTRAL AC
Plumbing Baths (Full):   2
Baths (Half):   1
Extra Fixtures:   3
Total Plumbing Fixtures:   11 
Bedrooms 0
Main Body (SQFT) 1626
Year Built 1965
Additions 2
Effective Year 1977
Remodeled 0
Interior Adj.
Other Features
Building Total & Improvement Details

Grade C 100%
Percentage Complete 100
Total Adjusted Replacement Cost New $227,445
Physical Depreciation (% Bad) 0%
Depreciated Value $120,546
Economic Depreciation (% Bad) 0%
Functional Depreciation (% Bad) 0%
Total Depreciated Value $120,546
Market Area Factor 1.00
Building Value $120,550
Misc Improvements Value $490
Total Improvement Value $121,040

Assessed Land Value $28,860
   
Assessed Total Value $149,900



Addition Summary 
StoryTypeCodeArea
1.00 STOOP MASONRY TERR MS 24
1.00 WOOD DECK WDDK 270
 
Other Improvements 
UnitsDescriptionItemCodeYear% BadValue
12x21 DIMENSIONS CANOPY RESIDENTIAL 1998 87 190
10x16 DIMENSIONS STORAGE BLDG FRAME/METAL 1998 94 300
 


Building Sketch
Photograph
Building Sketch Building Photo
(Click sketch for bigger image)




The property records provided herein represent information as it currently exists in the Randolph County property tax system. This data is subject to change daily. Randolph County makes no warranties, expressed or implied, concerning the accuracy, completeness, reliability, or suitability of this data. Furthermore, this office assumes no liability whatsoever associated with the use or misuse of such data.

Per North Carolina General Statue 105-285-287 (d), all real property in North Carolina is subject to listing and valuation annually as it exists on January 1. Real Property assessments are based on market values as of the date of the last countywide reappraisal in 2023.

View User Guide