Tax Department Link
Building Summary

Data last updated on: 3/3/2026     Ownership current as of: 2/25/2026     Tax Year: 2026
REID 96667

PIN # 8702-60-7156

Location Address Property Description
1337 W RIDGE ST BOBBY DEAN OWENS LO:NEW 1 PL:190-49
   
Property Owner Owner's Mailing Address
NUNEZ, CARLOS REYES
245 HYATT CT
SILER CITY NC 27344
Parcel
Buildings
Misc Improvements
Land
Deeds
Notes
Sales
Photos
Tax Bill
Map
Building Location Address
1337 W RIDGE ST
Building Description
SINGLFAM
Card   of  1
Bldg Type SINGLE FAMILY RES
Units 1
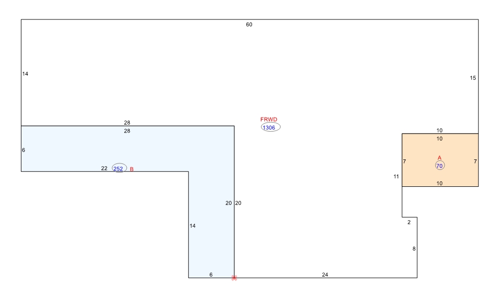
Living Area (SQFT) 1306
Number of Stories 1.00
Style CONVENTIONAL
Foundation CRAWL
Exterior WOOD FRAME
Const Type
Heating CENTRAL
Air Cond CENTRAL AC
Plumbing Baths (Full):   1
Baths (Half):   0
Extra Fixtures:   2
Total Plumbing Fixtures:   5 
Bedrooms 0
Main Body (SQFT) 1306
Year Built 1900
Additions 2
Effective Year 1930
Remodeled 0
Interior Adj.
Other Features
Building Total & Improvement Details

Grade D 78%
Percentage Complete 100
Total Adjusted Replacement Cost New $146,063
Physical Depreciation (% Bad) 0%
Depreciated Value $73,032
Economic Depreciation (% Bad) 0%
Functional Depreciation (% Bad) 0%
Total Depreciated Value $73,032
Market Area Factor 1.00
Building Value $73,030
Misc Improvements Value
Total Improvement Value $73,030

Assessed Land Value $24,320
   
Assessed Total Value $97,350



Addition Summary 
StoryTypeCodeArea
1.00 OPEN FRAME PORCH OFP 70
1.00 OPEN FRAME PORCH OFP 252
 
Other Improvements 
 


Building Sketch
Photograph
Building Sketch Building Photo
(Click sketch for bigger image)




The property records provided herein represent information as it currently exists in the Randolph County property tax system. This data is subject to change daily. Randolph County makes no warranties, expressed or implied, concerning the accuracy, completeness, reliability, or suitability of this data. Furthermore, this office assumes no liability whatsoever associated with the use or misuse of such data.

Per North Carolina General Statue 105-285-287 (d), all real property in North Carolina is subject to listing and valuation annually as it exists on January 1. Real Property assessments are based on market values as of the date of the last countywide reappraisal in 2023.

View User Guide